Bilocale in vendita

Reggio Nell'Emilia, Via San Paolo - Centro
€ 133.000
2 locali 2 locali
58 Mq 58 Mq
1 bagno 1 bagno

Bilocale in vendita

Reggio Nell'Emilia, Via San Paolo - Centro

Descrizione annuncio

CENTRO STORICO

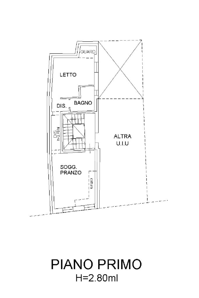
Nel cuore del centro storico di Reggio Emilia, proponiamo in vendita un appartamento di 55 mq situato al primo piano, di un edificio con ascensore, ristrutturato internamente nel 2004.

L'appartamento comprende un ampio soggiorno open space con angolo cottura, un bagno finestrato e una camera da letto matrimoniale accogliente.

Completa l'immobile una cantina posta al piano seminterrato.

La posizione centrale permette di raggiungere facilmente i principali servizi e le attrazioni della città, rendendo questa proprietà un'opzione interessante per chi cerca praticità e comfort in un contesto urbano.

Per maggiori informazioni o per fissare un appuntamento, chiamaci al 0522 088199 o mandaci una mail a recag@tecnocasa. it

Mostra tutto

Nelle vicinanze

Trasporto pubblico Trasporto pubblico
Reggio Emilia Santo Stefano
Reggio Emilia Santo Stefano
810 m
stazione di Reggio Emilia
stazione di Reggio Emilia
1,2 Km
Trasporto pubblico
130 m
Coop 1
Coop 1
190 m
Reggio Viale Piave
Reggio Viale Piave
780 m
Ricariche auto elettriche Ricariche auto elettriche
Eneldrive Piazza Vincenzo Gioberti
160 m
Eneldrive Palazzo Vescovile
240 m
Reggio nell'Emilia Roversi | EnelX
340 m
Eneldrive Nobili
410 m
Eneldrive Piazza dal Pòpol Giòst
570 m
Scuole Scuole
Istituto scolastico paritario "S. Vincenzo de' Paoli"
270 m
Liceo scientifico statale "L. Spallanzani"
270 m
Scuola dell'infanzia e primaria paritaria "Figlie di Gesù"
280 m
Scuola secondaria di I grado statale "A. Manzoni
300 m
Scuole
310 m
Farmacia Farmacia
Farmacia della Ghiara Farmacie comunali riunite
160 m
Farmacia Centrale
190 m
Farmacia Comunale Gattaglio
430 m
Farmacia Comunale della via Emilia
480 m
Farmacia
660 m
Ospedali Ospedali
Azienda ospedaliera Arcispedale Santa Maria Nuova
1,7 Km
Casa di cura policlinica Villa Verde
2,2 Km
Supermercati Supermercati
Coop UNO
200 m
Esselunga
450 m
Coop Porta Castello
600 m
Eurospar
750 m
Conad
910 m
Negozi Negozi
Ps Personal Shopper
120 m
H&M
240 m
Alchimista
240 m
Antica Bontà
290 m
Arki
290 m
Bar Bar
Canossa Bistrot
500 m
The Craftsman
530 m
Cafè Fontanesi
560 m
Dimmelo tu
570 m
Pellini
640 m
Ristoranti Ristoranti
Osteria Guerrina
60 m
Cucine Clandestine
120 m
Ristorante delle Notarie
130 m
Tabarin Osteria Popolare
170 m
Al Chiostro della Ghiara
210 m
Mostra tutto

Caratteristiche

Rif.:
61127051
Piano:
1 di 3 con ascensore (Piano basso)
Camere da letto:
1
Arredamento:
Parziale
Condizionamento:
Assente
Ascensore:
Mostra tutto
Prezzo Prezzo
€ 133.000
Rata mutuo Rata mutuo
€ 627 / mese
Spese annue Spese annue
€ 900
Proponi il tuo prezzoProponi il tuo prezzo

Classe Energetica

D
D
D
D
D
D
D
D
D
Anno di costruzione:
2004
Riscaldamento:
Autonomo
Tipo impianto:
A radiatori
Tipo alimentazione:
Metano

Ti interessa visionare l'immobile?

Fissa un appuntamento  Fissa un appuntamento

Richiedi informazioni

Clicca su Leggi per aprire l'informativa
* Questi campi sono obbligatori

Calcola il tuo mutuo

Semplice e senza impegno
Anticipo

( % )
Mutuo

( % )

pochi semplici passi

inserisci i tuoi dati
Questionario completato
Grazie per aver richiesto un appuntamento senza impegno con un nostro Consulente del Credito e Assicurativo.

Hai inserito correttamente tutti i dati necessari e a breve riceverai una e-mail con un link da convalidare per inviare i tuoi dati.
Affiliato
Studio San Maurizio Srl
Via Emilia All'Ospizio, 59 42100 Reggio Nell'Emilia (RE)

Il nostro staff


  • Luca Pedrazzoli
    Affiliato

  • Alessandro Pasquali
    Affiliato
Via Emilia All'Ospizio, 59 42100 Reggio Nell'Emilia (RE)
Zona: Ospizio-Quinzio-Mirabello-Campo di Marte
Mostra su mappa
Orari: Dal lunedì al venerdì dalle 9.00 alle 13.00 e dalle 15.00 alle 20.00. Il sabato dalle 9.00 alle 13.00 e dalle 15.00 alle 17.00.
Affiliato
Studio San Maurizio Srl
Via Emilia All'Ospizio, 59 42100 Reggio Nell'Emilia (RE)

2026 Tecnocasa Franchising S.p.A. - P. IVA 08365160152 - Via Monte Bianco 60/A 20089 Rozzano (MI). Ogni agenzia ha un proprio titolare ed è autonoma. Privacy policy | Policy utilizzo | Cookie policy