Trilocale in vendita

Reggio Nell'Emilia, Via Emilia All'Ospizio - Ospizio
€ 113.000
3 locali 3 locali
110 Mq 110 Mq
1 bagno 1 bagno

Trilocale in vendita

Reggio Nell'Emilia, Via Emilia All'Ospizio - Ospizio

Descrizione annuncio

Ospizio - Reggio Emilia

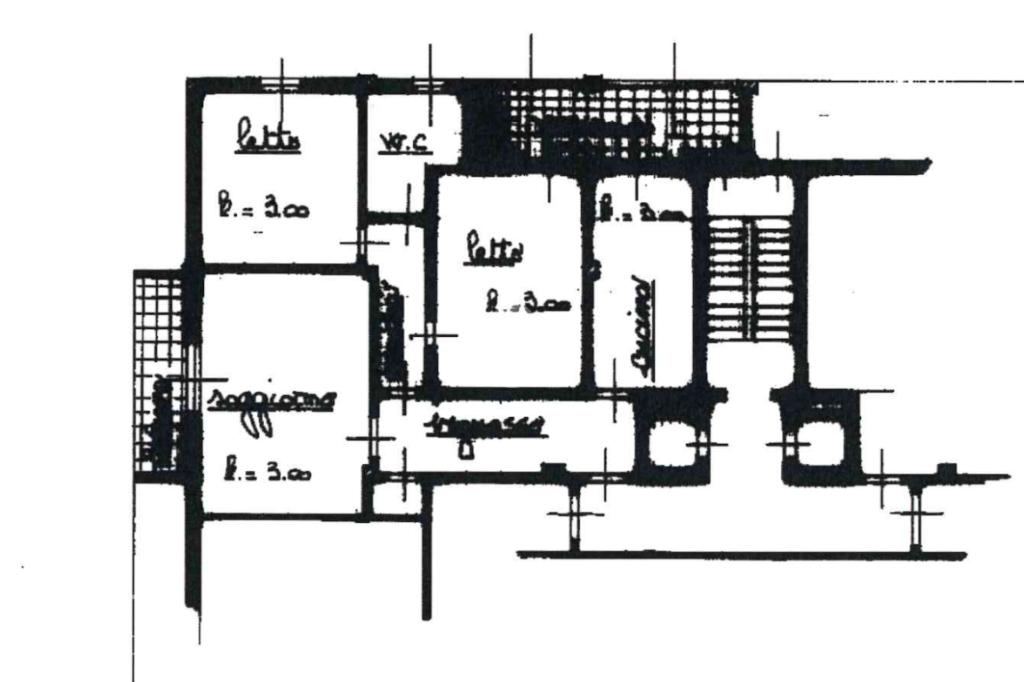
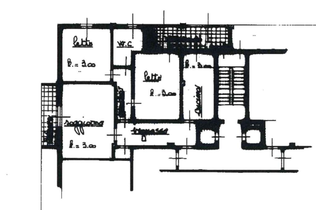
Proponiamo in vendita un appartamento trilocale di 110 mq situato al quinto piano di un edificio dotato di due ascensori.

La disposizione interna comprende tre locali ben distribuiti: un ampio soggiorno, una cucina abitabile separata, due camere da letto matrimoniali e un bagno funzionale.

La presenza di tre logge garantisce luminosità e uno spazio esterno privato.

Completa la proprietà un comodo garage e una cantina.

Questa soluzione abitativa rappresenta un'opportunità interessante per chi cerca una residenza spaziosa e ben collegata.

Per maggiori informazioni o per fissare un appuntamento, chiamaci al 3703081977 o al 0522 570622 o mandaci una mail a

Mostra tutto

Nelle vicinanze

Trasporto pubblico Trasporto pubblico
stazione di Reggio Emilia
stazione di Reggio Emilia
820 m
Reggio San Lazzaro
Reggio San Lazzaro
1,3 Km
Farmacia Caravita
Farmacia Caravita
390 m
Reggio Emilia - Stazione FS
Reggio Emilia - Stazione FS
820 m
Reggio Ospizio
Reggio Ospizio
320 m
Ricariche auto elettriche Ricariche auto elettriche
Eneldrive Piazza del Tricolore
810 m
Eneldrive Stazione FS
840 m
Eneldrive Parcheggio Piazzale Europa
980 m
Eneldrive Via Giorgione
1,1 Km
Eneldrive Centro Commerciale Quinzio
1,5 Km
Scuole Scuole
Scuola primaria statale "G. Marconi"
200 m
Scuola primaria statale "A. Dall'Aglio"
660 m
Scuola primaria statale "E. Morante"
740 m
Scuola primaria "G. Zibordi"
960 m
Scuola dell'infanzia comunale Anna Frank
970 m
Farmacia Farmacia
Farmacia Caravita
420 m
Farmacia
800 m
Farmacia della gabella
850 m
Farmacia Le Reggiane
1,2 Km
Farmacia Comunale della via Emilia
1,4 Km
Ospedali Ospedali
Azienda ospedaliera Arcispedale Santa Maria Nuova
1,8 Km
Casa di cura policlinica Villa Verde
2,7 Km
Supermercati Supermercati
Coop Reggio Est
460 m
Sigma
1,4 Km
ECU
1,5 Km
Coop Porta Castello
1,6 Km
CONAD Reggio Sud
1,6 Km
Negozi Negozi
Il Forno delle Delizie
180 m
Forno
380 m
Pam Local
1,0 Km
ECU
1,1 Km
La Boulangerie
1,4 Km
Bar Bar
Caffetteria Carlotta
70 m
Café Reggio
480 m
Bar
560 m
Bar Didì
630 m
Caffetteria L'Incontro
860 m
Ristoranti Ristoranti
Piedigrotta 3
160 m
Ristorante Pizzeria "Piedigrotta 2"
200 m
Maicol Pizza
340 m
Mensa CIR Il Guicciardino
370 m
Emerald Drink & Food
460 m
Mostra tutto

Caratteristiche

Rif.:
61105771
Piano:
5 di 8 con ascensore (Piano alto)
Box:
1
Balconi:
3
Camere da letto:
2
Arredamento:
Parziale
Mostra tutto
Prezzo Prezzo
€ 113.000
Rata mutuo Rata mutuo
€ 501 / mese
Spese annue Spese annue
€ 1.400
Proponi il tuo prezzoProponi il tuo prezzo

Classe Energetica

G
G
G
G
G
G
G
G
G
Anno di costruzione:
1970
Riscaldamento:
Centralizzato
Tipo impianto:
A radiatori
Tipo alimentazione:
Metano

Ti interessa visionare l'immobile?

Fissa un appuntamento  Fissa un appuntamento

Richiedi informazioni

* Questi campi sono obbligatori

Calcola il tuo mutuo

Semplice e senza impegno
Anticipo

( % )
Mutuo

( % )

pochi semplici passi

inserisci i tuoi dati
Questionario completato
Grazie per aver richiesto un appuntamento senza impegno con un nostro Consulente del Credito e Assicurativo.

Hai inserito correttamente tutti i dati necessari e a breve riceverai una e-mail con un link da convalidare per inviare i tuoi dati.
Affiliato
Studio San Maurizio Srl
Via Emilia All'Ospizio, 59 42100 Reggio Nell'Emilia (RE)

Il nostro staff


  • Cristian Aglieri Rinella
    Collaboratore

  • Luca Pedrazzoli
    Affiliato

  • Alessandro Pasquali
    Affiliato
Via Emilia All'Ospizio, 59 42100 Reggio Nell'Emilia (RE)
Zona: Ospizio-Quinzio-Mirabello-Campo di Marte
Mostra su mappa
Orari: Dal lunedì al venerdì dalle 9.00 alle 13.00 e dalle 15.00 alle 20.00. Il sabato dalle 9.00 alle 13.00 e dalle 15.00 alle 17.00.
Affiliato
Studio San Maurizio Srl
Via Emilia All'Ospizio, 59 42100 Reggio Nell'Emilia (RE)

2025 Tecnocasa Franchising S.p.A. - P. IVA 08365160152 - Via Monte Bianco 60/A 20089 Rozzano (MI). Ogni agenzia ha un proprio titolare ed è autonoma. Privacy policy | Policy utilizzo | Cookie policy